รหัสสินทรัพย์ : 59228
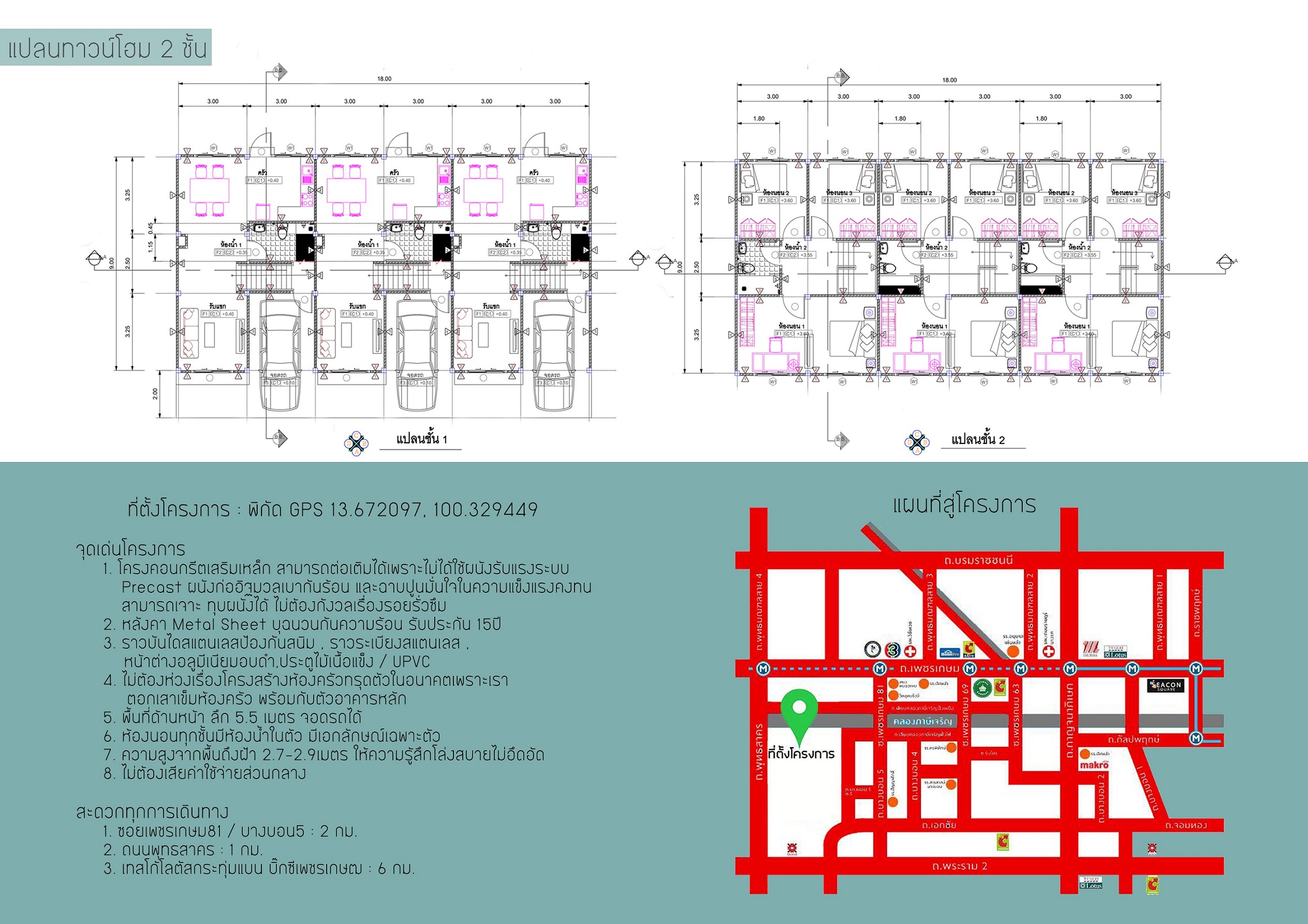
จุดเด่นโครงการ1. โครงคอนกรีตเสริมเหล็ก สามารถต่อเติมได้เพราะไม่ได้ใช้ผนังรับแรงระบบ Precast ผนังก่ออิฐมวลเบากันร้อน และฉาบปูนมั่นใจในความแข็งแรงคงทน สามารถเจาะ ทุบผนังได้ ไม่ต้องกังวลเรื่องรอยรั่วซึม2. หลังคา Metal Sheet บุฉนวนกันความร้อน รับประกัน 15 ปี3. ราวบันไดสแตนเลสป้องกันสนิม , ราวระเบียงสแตนเลส , หน้าต่างอลูมีเนียมอบดำ , ประตู UPVC4. มีต่อเติมห้องครัวและพื้นที่ซักล้างด้านหลัง ให้ในตัวลูกค้าไม่จำเป็นต้องต่อเติมครัวเอง ไม่ต้องห่วงเรื่องโครงสร้างห้องครัวทรุดตัวในอนาคตเพราะเราตอกเสาเข็มห้องครัวพร้อมกับตัวอาคารหลัก5. พื้นที่ด้านหน้า ลึก 6 เมตร จอดรถในบ้านได้ ด้านหน้ากว้าง 6 เมตร จอดรถหน้าบ้านได้6. พื้นปูกระเบื้องลายไม้ทุกชั้นทั้งหลัง7. ไม่ต้องเสียค่าใช้จ่ายส่วนกลาง8. ที่ตั้งอยู่หน้าหมู่บ้าน ห่างจากถนนใหญ่เพียง 30 เมตร
9. แถมเครื่องทำน้ำอุ่นทุกห้อง
10. แถมแอร์ 2 เครื่อง
11. แถมปั้มน้ำ ถังเก็บน้ำ
11. แถมฉากกั้นห้อง
| ราคาขาย : | คุณ ปฎิภาณ Tel. 0895213328 |
| ประเภท : | ทาวน์โฮม(เจ้าของขายเอง/เซ้ง/ให้เช่า/ให้บริการ) |
| ประเภทประกาศ : | ประกาศขาย |
| จังหวัดที่ตั้ง : | สมุทรสาคร |
| ที่ตั้ง : |
สถานที่ใกล้เคียง1. ซอยเพชรเกษม 81 / บางบอน5 : 2 กม.2. ถนนพุทธสาคร : 1 กม.3. เทสโก้โลตัสกระทุ่มแบน : 6.4 กม.4. เซ็นทรัลสมุทรสาคร : 13 กม.5. บิ๊กซีเพชรเกษม : 6 กม.
|
| เขต/อำเภอ : | กระทุ่มแบน |
| แขวง/ตำบล : | สวนหลวง |
| ถนน: | ถนนพุทธสาคร : 1 กม |
| ย่าน: | ทสโก้โลตัสกระทุ่มแบน : 6.4 กม.4. เซ็นทรัลสมุทรสาค |
| รหัสสินทรัพย์ : | 59228 |
| ประเภท : | ทาวน์โฮม(เจ้าของขายเอง/เซ้ง/ให้เช่า/ให้บริการ) |
| ประเภทประกาศ : | ประกาศขาย |
| ราคาขาย : | คุณ ปฎิภาณ Tel. 0895213328
|
| จังหวัดที่ตั้ง : | สมุทรสาคร |
| ที่ตั้ง : |
สถานที่ใกล้เคียง1. ซอยเพชรเกษม 81 / บางบอน5 : 2 กม.2. ถนนพุทธสาคร : 1 กม.3. เทสโก้โลตัสกระทุ่มแบน : 6.4 กม.4. เซ็นทรัลสมุทรสาคร : 13 กม.5. บิ๊กซีเพชรเกษม : 6 กม.
|
| เขต/อำเภอ : | กระทุ่มแบน |
| แขวง/ตำบล : | สวนหลวง |
| ถนน: | ถนนพุทธสาคร : 1 กม |
| ย่าน: | ทสโก้โลตัสกระทุ่มแบน : 6.4 กม.4. เซ็นทรัลสมุทรสาค |










ดูแผนที่
